What it takes to turn empty office buildings into residential housing
Originally seen on pbs.org
Since the COVID-19 pandemic began, more companies have offered remote work options for their employees, or have even switched to working entirely remotely – leaving empty office buildings a new fixture in many cities. In July 2023, Boston’s Planning and Development Agency announced a pilot program to offer incentives to building developers who convert office buildings to residential housing.
As engineers who study buildings, we wanted to know if these empty spaces could be converted to residential buildings, and what hurdles developers would face.
While converting office buildings to multi-family residential involves many considerations – including zoning codes, real estate values and structural issues – certain buildings may be good candidates for this type of conversion. Here’s what it would take to remodel these spaces.
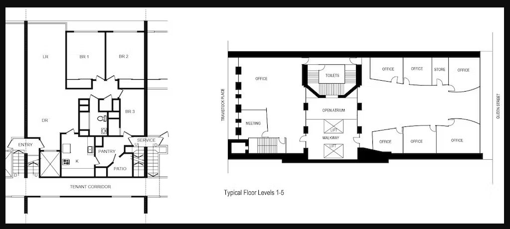
Redefining space
First off, the building owners wouldn’t need to make any major structural changes to convert an office building to a residential building. Most office buildings are designed so that the tenants can easily build out the space to suit their needs. This means they can put up walls, take power where they need, and select finishes like flooring, paint and lighting.
With a conversion to multi-family residential, the shell and structural elements of the building would remain, while the building owners could add or move walls to create individual apartments. The costs for this interior remodeling would depend on the how fancy things like the countertops and light fixtures are.
Proper daylighting in a dwelling or office provides a host of benefits.
But remodelers would also need to consider nonstructural building features, like windows. Windows determine the distribution of natural light in each residential unit. Narrower office buildings with more area along the perimeter – and therefore more opportunity for viewing windows – would transition more easily to residential than deep, rectangular-shaped office buildings. No one wants to live in a home with no daylight.
Electricity, fire alarm and telecommunications
Residential and commercial buildings have different electricity needs. Residential buildings have kitchen appliances that require lots of power, but office buildings use more computers, projectors and copy machines – meaning the electrical load would likely be about the same. Office and residential buildings also have similar power needs for lighting.
The electrical load from heating and air conditioning would depend on the type of systems used. While the main electrical service of an office building might be an OK size for a residential building, remodelers would need to add a subpanel to each residential unit. U.S. code requires that all residents have “ready access” to the circuit breakers or fuses supplying their unit.
Building owners would also need to add more fire alarm devices, since residential buildings have more rooms. They might need to revise the internet, telephone and cable systems, as well, to make sure each residential tenant has access to these services.
Though expensive, these electrical revisions are possible. The biggest hurdles would be adding the subpanels and metering to figure out how much each unit uses.
Heating, ventilation and air conditioning
While commercial buildings usually have centralized HVAC systems, residential buildings need separate HVAC systems and controls for each residential unit. That being said, mid-rise and high-rise apartment buildings often use a centralized HVAC system with variable air volume units in each zone. Variable air volume units work together with a central air handling unit that supplies a constant airflow. Each variable air volume unit then adjusts the air flow for its specific zone. Each smaller apartment would be a zone, but some larger apartments may need multiple zones.
Residential buildings typically have a smaller HVAC load than office buildings, meaning the existing HVAC system would be larger than needed for residential reuse. Oversized air conditioning systems often have humidity problems – add to that the fact that residential tenants create more humidity from showering, doing laundry and cooking. The way to mitigate humidity here is through additional exhaust fans. Variable air volume units would also help keep the extra humidity under control. Building owners would need to pay for these additions, as well as ductwork remodeling.
Plumbing and fire protection
In office buildings, most plumbing is centralized, often in the building’s core. For instance, bathrooms tend to be grouped together and located in the same spot on each floor. However, in residential buildings, plumbing is distributed throughout. Each unit typically has its own bathroom and kitchen, and each requires drinking water and sanitary sewer.
The biggest issues here would be the service sizes – or how large the pipes serving the building are – and the interior plumbing system. The service sizes for water and sewer in an office building may not be big enough for residential uses. This would depend on local codes and the number of plumbing fixtures. It’s likely that the pipe for a sewer utility connection would need to be larger for an apartment building than for an office building. Also, the interior plumbing system would need a remodel to serve each residential unit.
Reworking the plumbing for water should be possible. However, reworking the sanitary sewer system would be much more difficult, especially on upper floors. Gravity makes things run downhill, and longer horizontal pipes need more vertical drop to keep things flowing in the right direction. This remodel would require new plumbing chases – vertical cavities that pipes run in – to accommodate the sanitary sewer and vent piping needs. Adding these chases would likely require core drilling of floors. If the owner wanted to invest the money, it would be doable – but expensive.
The fire sprinkler system would likely need revisions once the new walls go up, but the size of the pipe bringing water to the sprinkler system should be pretty close to the right size.
New life for vacant buildings is doable but not easy
No one wants to see office buildings sitting vacant, as vacant buildings can diminish surrounding real estate values. Converting an office building to a multi-family residential occupancy is possible. It would, however, not be cheap.
But office buildings that are due for a remodel or upgrade anyway could be great candidates for this type of reinvention. If the building systems – HVAC, plumbing, electrical – are due for replacement, the project becomes more cost effective. With demand for rental units outpacing growth in new supply, and many cities like San Francisco and Boston offering incentives to convert, there is potential here. For someone with a creative vision and a building in the right location, this could be a successful and innovative project.
 
                         
            